
CASA YARAVÍ
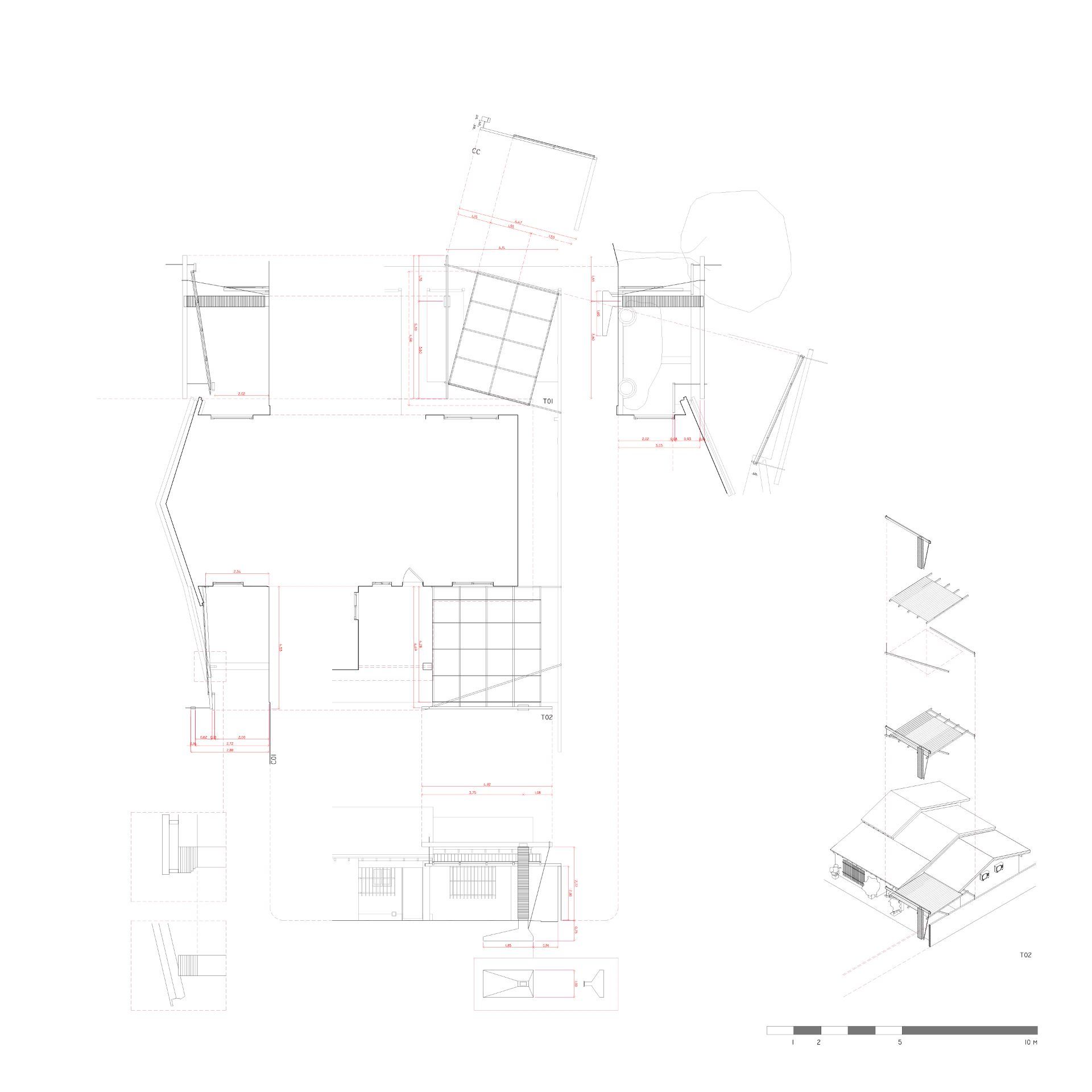
Construir en el conurbano se trata de resolver muchas veces con lo que se tiene a mano o con lo que se puede. Un presupuesto acotado, utilización de materiales conseguidos de demolición y la posibilidad de establecer un proceso de construcción entre arquitecto y maestro donde el ensayo y la experimentación fueran condicionantes del proyecto. Yaraví es una obra pensada como una investigación construida. Buscó estudiar a la TENSIÓN como un recurso arquitectónico para romper el concepto de límite. Esto se dió en varias escalas: En una primera escala que tiene que ver con LA VIVIENDA, el proyecto trató de generar semi cubiertos entre interior y el exterior en la casa de una pareja de jubilados en la ciudad de Moreno, ubicada en el conurbano bonaerense a 38 kilómetros de la ciudad de Buenos Aires. Esta acción permite pensar espacios de transición e intermediación que mejoran la vivencia no sólo de los nuevos lugares, sino también de aquellos espacios que median. Cada decisión atendió a la mejoría de las condiciones no sólo de los espacios generados sino también los del “adentro” y del “afuera”. Se busca habitar los bordes. En una segunda escala que refiere a LA CIUDAD, los espacios construidos proponen una revisión de ciertas tipologías y locales que se construyen en el perímetro de la región metropolitana. Estas construcciones cumplen con la función de espacios conocidos como cocheras, garaje, quincho, asador, parrilla, galería y son los lugares hacia donde se expande la casa y sus habitantes. En esos bordes sucede la vida en familia y en comunidad. La condición de INDEFINICIÓN ayuda a pensar el crecimiento de las viviendas contemporáneas sin rótulos y con la única meta de mejorar las condiciones de vida de los habitantes. En una tercera escala se busca tensar la relación del constructor y lo construido en EL HACER. En este caso la figura de arquitecto proyectista entendida como el conocedor de antemano de las capacidades de un material para ponerlo en práctica supeditado a la forma, no funciona. Por lo contrario, la actitud ante el material es entre lúdica y científica dado que nunca se la trabajó a la teja como módulo para la construcción de una columna y menos estando solicitada de manera excéntrica en su esfuerzo. Respecto de “lo construido” se buscó que la obra estuviera en tensión constante. Una columna de tejas apiladas sostiene una única viga en voladizo de la que cuelgan los planos de techos. El uso de tensores y el mínimo de puntos de apoyo en existencias, pretendió tensar la condición tectónica de la pieza. ¿Hasta qué punto un material que no fue pensado con ese fin puede servir? ¿Hasta qué punto sostén y sostenido pueden estar distantes? ¿Cómo se lleva a cabo un espacio con el mínimo de material al punto tal de desmaterializar los límites? En esta posibilidad de estudio tectónico está la posibilidad de entender la dificultad del borde ya que se diluye la materialización de los límites espaciales.

























EDIFICIO HIBISCUS
El edificio Hibiscus, Ubicado en Moreno, Buenos Aires; reflexiona sobre la celeridad en los cambios de modos de vida, busca aportar flexibilidad en sus espacios, para que puedan adaptarse al estilo de vida contemporáneo y ser indeterminados ante un futuro desconocido. La mayoría de las viviendas que se construyen actualmente, resultan ser arquitecturas diagramadas por órdenes establecidos en otra época y conforme a otras necesidades, se trata de modelos más rígidos enmarcados en una idea de familia y modo de vida destinado a perdurar. El conflicto se genera cuando dichos ordenes establecidos y formas de habitar cambian, en ese momento nos encontramos con edificaciones que no pueden satisfacer los cambios. Necesitamos pensar en sistemas evolutivos en continua redefinición haciendo eje en el organismo habitante, el individuo puede cambiar por la arquitectura y la arquitectura por el individuo, para ello, Lo importante es pensar en las preguntas que hablan de los procesos de habitar. El edificio hibiscus parte de la búsqueda de subordinar la planificación y tecnología a una adecuación variada y flexible del entorno construido al individuo, incorporando las condiciones cambiantes como un elemento positivo del proyecto, para ello es necesario un diseño capaz de resistir el paso del tiempo, tanto funcional como estético. Desde el punto de vista estético surge la idea de reemplazar contemporaneidad con atemporalidad. encontramos un cubo estricto construido en su perímetro con ladrillos que envejece en forma favorable y sin mantenimiento, Una forma ¨pura¨, que es a fin de cuentas la manera más flexible de permitir el cambio y renovación continua. al ser un edificio entre medianeras, posee mayor masa en su fachada y contrafachada, se generan aperturas estratégicas, en las partes llenas alberga vacíos que funcionan como plenos donde se encuentran instalaciones y estructura, contemplando espacios para futuras necesidades. Este juego de llenos y vacíos no sólo responde al programa, sino también al comportamiento medioambiental e impronta del edificio. Desde el punto de vista funcional, encontramos contenidas dentro del cubo tres plantas libres que sitúan las circulaciones verticales sobre sus laterales, culminan en una cubierta liviana, que contempla la posibilidad estructural de ser reciclada y así agregar otro nivel contenido dentro de la forma. Las plantas libres, en su interior utilizan tecnologías y materiales constructivos reciclables, por lo tanto, en lugar de proyectar un espacio para un determinado programa, se ofrece una estructura abierta a distintas apropiaciones. En el caso actual se propuso un programa de seis unidades funcionales, dos compuestas por un módulo mínimo de superficie habitable (según normativa) y las otras cuatro por dos módulos, de los cuales uno se presenta en forma incompleta y tiene en primera instancia la posibilidad de progresar aumentando su superficie. Una vez completada la totalidad de la superficie edificable posible, las unidades funcionales compuestas por dos módulos tendrán la posibilidad de ser dividas generando así dos unidades funcionales independientes. El proceso puede ser inverso fusionando módulos. Ser un soporte a las necesidades de ocupación físicas y simbólicas, en constante cambio, es el argumento principal del proyecto.




































CASA CALLAO
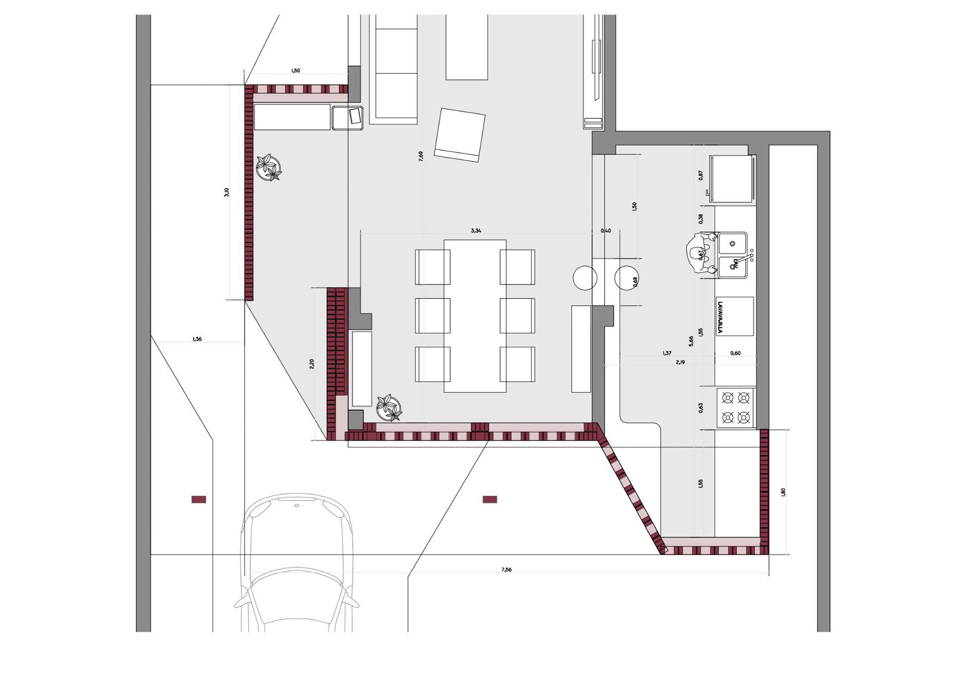
El encargo se dió como una serie de pretenciones claras y aisladas: Ampliar la cocina, ganar más luz y tener un lugar para hacer yoga, mejorar el acceso a la casa dándole jerarquía y evitar ver desde la calle un departamento que existe en el fondo del lote, por detrás de la casa a intervenir. Se propuso una única piel de ladrillo que envolviese la existencia, ampliara espacios, reordenara visuales, definiera un nuevo modo de acceder, capturara un semicubierto en desuso como parte de la interioridad. Esta nueva superficie que por momentos se adapta a lo que existe y por momento se despega busca en esa diferencia construir un BORDE, a diferencia de lo que se interpreta como Límite. EN esta condición, el Borde tiene espesor y es habitable. Posibilitando generar transiciones controladas en el pasaje de exterior a interior no sólo de las personas, sino tambien del aire y la luz para que la experiencia sea atractiva. La nueva piel define con un lenguaje atemporal las nuevas formas de habitar de una casa. Dando desde sus bordes una nueva oportunidad de ocupar el hogar de toda la vida de una jubilada en el conurbano bonaerense.”























CASA LOS JUNCOS
La casa Los Juncos, ubicada en un barrio cerrado de Lujan, Buenos Aires; se piensa en la profundidad de un entorno, donde la comunión con el paisaje circundante y la eficacia espacial se erigen como pilares fundamentales. La vivienda, despojada de artificios, se divide en dos estratos claramente definidos por la elección de materiales y la disposición de sus espacios. La génesis de este hogar encuentra raíces en la necesidad de construir una morada versátil, adaptada a una audiencia desconocida, en el marco de un proyecto inmobiliario de bajo presupuesto. La adaptabilidad se convierte así en la esencia del diseño, permitiendo que la casa se amolde a diversas circunstancias y modos de vida a lo largo de su existencia. El desafío principal fue la colaboración con una mano de obra poco calificada, sin comprometer la economía del proyecto. Por ello, se recurrió a detalles y métodos constructivos tradicionales y asequibles. Los materiales seleccionados se distinguen por su bajo coste y mantenimiento, garantizando una construcción sencilla y eficiente. El entorno natural influye marcadamente en la configuración de la vivienda. Situada al borde de un lago, la casa se erige con la intención de maximizar la comunión visual con el cuerpo acuático. La planta baja, reservada para las áreas sociales, se abre generosamente hacia el parque, propiciando una transición fluida entre los espacios interiores y exteriores, y aprovechando plenamente las vistas y la luz natural. El nivel inferior se caracteriza por un revestimiento oscuro, que no solo contrasta visualmente, sino que también funde la estructura con el paisaje, mientras que el volumen superior de ladrillo añade calidez y textura al conjunto. Este contrapunto material no solo obedece a un juego estético, sino que también contribuye a la durabilidad y funcionalidad de la casa. La orientación se planifica para optimizar la iluminación natural y la ventilación, mientras que las aperturas y ventilaciones cruzadas ayudan a mantener una temperatura agradable y mejoran la eficiencia energética. En la planta baja, un sistema constructivo desmontable permite futuras modificaciones y ampliaciones, como la posible expansión en la planta alta, actualmente reservada como terraza verde para la contemplación del lago. La distribución interna se organiza mediante una circulación clara y sencilla, separando las áreas húmedas de las de estar. Esta disposición no solo facilita el movimiento, sino que también permite la adaptación a futuros usos y cambios en la vida de los habitantes. La flexibilidad se erige así como elemento central del diseño, permitiendo que la casa evolucione con sus ocupantes. Esta residencia contemporánea no solo se distingue por su diseño adaptable y su estética tradicional, sino también por su funcionalidad y respeto por el entorno. Es un espacio que invita a la conexión con la naturaleza, sin sacrificar la comodidad ni el estilo de vida moderno. La fusión de materiales tradicionales con mirada actual da como resultado una morada atemporal.




























CASA YOPARÁ
Al desafío de proyectar la casa propia de todx arquitectx se le suma la variable de intervenir la pequeña casa donde vivió durante muchos años hasta su muerte Doña Josefa, la abuela de Juan Pablo. Con estas cuestiones las preguntas sobre qué hacer, cuánto demoler, qué agregar, qué atmosfera sostener, con qué materialidad nueva se puede hacer referencia a lo vivido, cómo se pueden ganar metros de interioridad para un arquitecto y una música en una casa que solo tenía una cocina, un baño y una piecita sin iluminación. La propuesta busca trabajar con una pared que mas que separar, trabaja como conectora: incorpora un “depósito” a la interioridad para hacer un espacio de taller para piano y estudio, aumenta la relación del dormitorio con el patio a traves de la galería y por último define un acceso nuevo sosteniendo las condiciones de la galería. La galería como lugar de encuentro, de intercambio con amigxs, de celebraciones como en los cumpleaños de la niñez, de lugar para ver partidos de futbol con los de siempre. El lugar indeterminado que no es adentro ni afuera, pero es ambos a la vez.












CASA DELIA
La casa Delia, ubicada en un barrio cerrado de moreno, Buenos Aires; pensada para dar respuesta a necesidades físicas y simbólicas planteadas en el encargo. Necesidad física, un espacio flexible y abierto donde habita una sola persona y a su vez posee la dualidad de albergar constantemente muchos invitados. Necesidad simbólica, un espacio rico en cuanto a un habitar sensible y reflexivo para delia. Se dispone de una gran sala continua, con el fin de caracterizar cada actividad en la casa, este espacio se organiza a partir de cuatro elementos dispuestos cuidadosamente en relación a otros físicos o imaginarios que son vestigios de la vida de Delia. Los espacios pensados buscaron nunca ser una operación neutral o técnica, por el contrario, la ocupación material y simbólica del espacio en la casa puede ser concebida como la lucha por el poder de asignar sentidos (discursos) a los elementos y objetos materiales. En esta tensión, más o menos secreta entre los distintos discursos que se disputan el sentido de los espacios, anida la dimensión política del habitar en la casa Delia. La vida se desarrolla dentro de un anillo alrededor del patio central totalmente acristalado, colonizado por un jardín que organiza y articula los distintos usos. Una cubierta metálica continua que abarca toda la extensión de la planta, en su interior revestida en fenólicos de madera, genera un contraste de luz, color y textura con el resto exterior que intenta pasar a un plano austero. A su vez flota gracias a un intersticio acristalado sobre cuatro volúmenes en su frente que se encuentran en contacto con el suelo, dos de ellos envuelven las caras laterales, y conforman una envolvente que abraza al gran espacio central interior; dejando un espacio abierto hacia el fondo donde se culmina en una galería con total apertura al parque privado. Se plantea una secuencia espacial en el paso del espacio público a privado. Se invita al visitante a través de una gran cubierta que en el acceso presenta su mayor escala, para luego acceder a la parte más secreta e íntima de la casa. En el recorrido hacia el punto de entrada mediante la pendiente de la cubierta y el terreno, la relación espacial comienza a brindar mayor intimidad, continuando la secuencia, una vez dentro el patio se torna protagonista, luego se pueden observar todos los espacios de la casa conectados entre sí.

























CASA LAFINUR
Aquí escribes el texto del proyecto…























CAPILLA SANTA MÓNICA
El proyecto del baño de la capilla Santa Monica, realizado en 2013, parte de una reflexión sobre la austeridad como lenguaje y sobre la capacidad de ciertos espacios para convocar significados que trascienden la función inmediata. Se buscó recuperar un clima primitivo, casi fundacional, que dialogara con una espiritualidad temprana, anterior a las complejidades institucionales y más cercana a lo elemental. El uso de un revestimiento que remite al barro no intenta una recreación literal, sino la construcción de una atmósfera vinculada con las primeras arquitecturas de reuniones iniciales del cristianismo en cavernas. La intención fue proponer un entorno donde la materia, en su condición más básica, vuelva a adquirir protagonismo. La atmósfera oscura, densa y contenida favorece esta idea de recogimiento, invitando a un uso más introspectivo del espacio. Desde lo alto, un haz de luz desciende y establece un eje vertical que articula el lugar. La luz cae sobre un elemento que funciona como una suerte de pila bautismal contemporánea, donde el agua adquiere un rol simbólico claro: purificación, renacer, tránsito. Este gesto transforma un acto cotidiano en un pequeño ritual, incorporando a la experiencia una dimensión espiritual sin necesidad de ornamento. La ausencia de espejos responde a ese mismo pensamiento. En lugar de un espacio centrado en la identidad reflejada, se propone un ambiente liberado de la mirada sobre uno mismo. La operación remueve la lógica del baño convencional y habilita la posibilidad de un uso más silencioso y menos autorreferencial. La decisión de plantear un baño mixto surge como una crítica directa a la rigidez con la que la institución eclesiástica aborda, aún hoy, las cuestiones de género y sexualidad. La eliminación de la segmentación por sexos, manteniendo únicamente la privacidad estrictamente necesaria, busca instalar un gesto arquitectónico capaz de cuestionar modelos que persisten más por hábito que por sentido. El espacio visible desde la entrada de la iglesia no es casual. Se entiende como un umbral donde la luz, el agua y la materia forman un sistema mínimo, pero cargado de significado. Allí, la arquitectura se propone no sólo como contenedor, sino como dispositivo capaz de sugerir una experiencia más honesta, más esencial y, en definitiva, más humana.






